Orion.jpg

ORION PARKVIEW

ORION PARKVIEW

TYPE: COMMERCIAL

TEAM: FITZGERALD ASSOCIATES ARCHITECTS

SITE: CHICAGO, IL

YEAR: 2018-2020

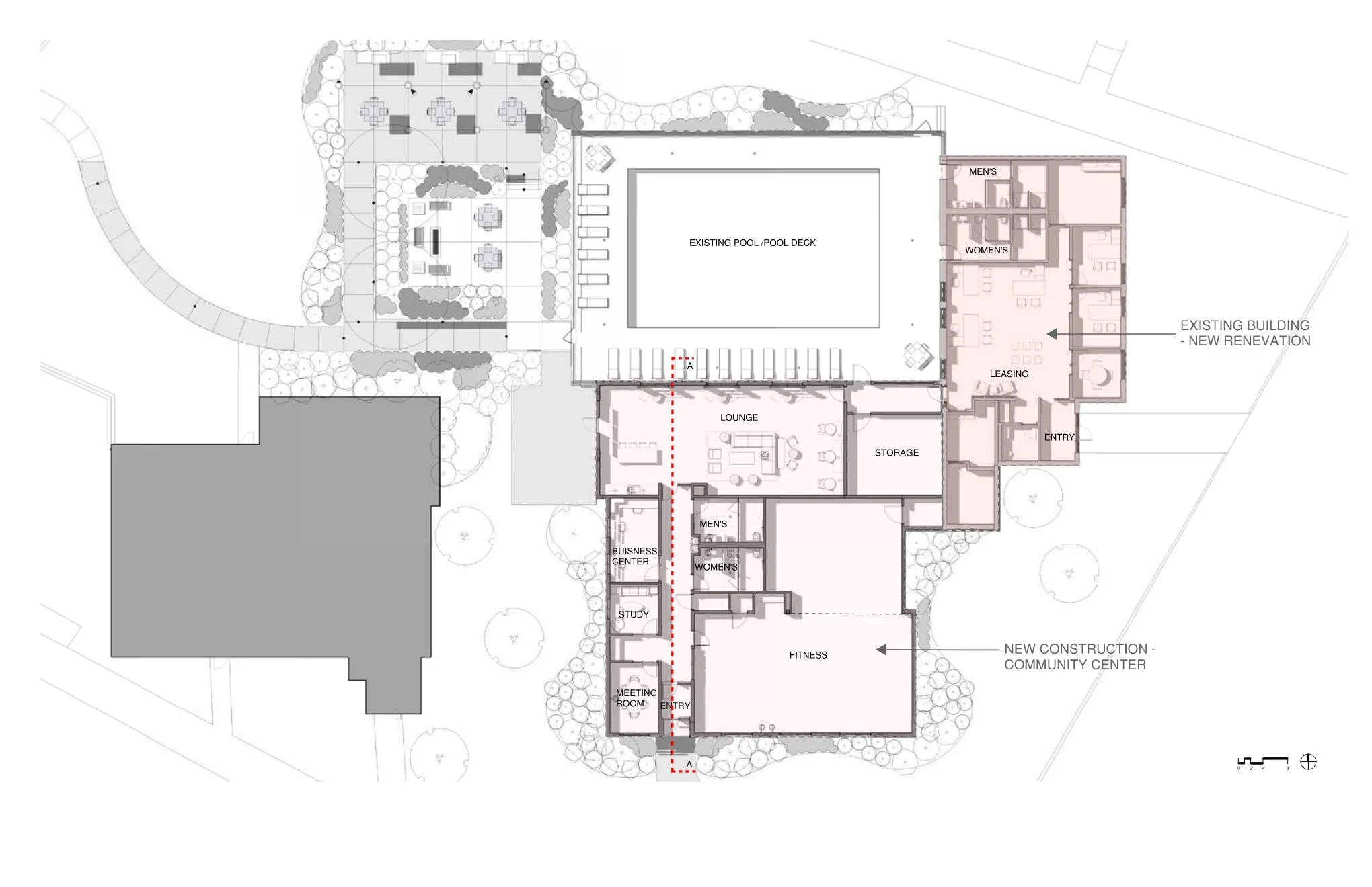
Orion Parkview is a renovation of existing leasing office with a new addition that includes a lounge, fitness and yoga center, business center, and outdoor community space. The 10,000 SF addition adds two juxtaposing shed roof lines as a modern reflection of the existing gable roof. The overall design incorporates minimalist shapes and color palette to seamlessly transition to the existing brick facade.

OVERALL SITE PLAN

OVERALL SITE PLAN

BUILDING SECTION & ENLARGED DETAILS

BUILDING SECTION & ENLARGED DETAILS

SITE PHOTOS